Zurück

Einfamilienhaus mit Carport im New England Stil von Sandra Johnson Architektin & InnenarchitektinEinfamilienhaus mit Carport im New England Stil von Sandra Johnson Architektin & InnenarchitektinEinfamilienhaus mit Carport im New England Stil von Sandra Johnson Architektin & InnenarchitektinEinfamilienhaus mit Carport im New England Stil von Sandra Johnson Architektin & InnenarchitektinEinfamilienhaus mit Carport im New England Stil von Sandra Johnson Architektin & InnenarchitektinEinfamilienhaus mit Carport im New England Stil von Sandra Johnson Architektin & InnenarchitektinEinfamilienhaus mit Carport im New England Stil von Sandra Johnson Architektin & InnenarchitektinEinfamilienhaus mit Carport im New England Stil von Sandra Johnson Architektin & InnenarchitektinEinfamilienhaus mit Carport im New England Stil von Sandra Johnson Architektin & Innenarchitektin

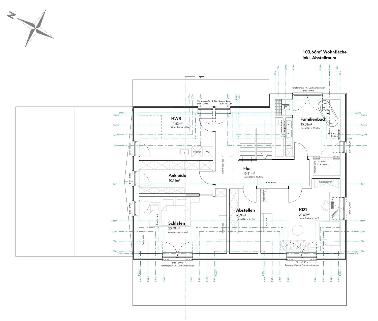
Einfamilienhaus mit Carport im New England Stil

Das abgebildete Einfamilienhaus vereint ländlichen Charme mit klassischer Eleganz. Mit seinem symmetrischen Satteldach, der grau-beigen Holzfassade und den weißen Akzenten wirkt es einladend und harmonisch. Große Fenster sorgen für viel Tageslicht, während die überdachte Veranda an der Front gemütlichen Schutz bietet. Der angrenzende Carport mit sichtbaren Dachbalken fügt sich nahtlos ins Gesamtbild ein und kombiniert Funktionalität mit traditionellem Design.

Beschreibung